Direkt zum Inhalt

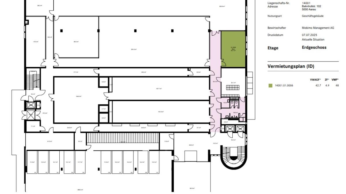
Mietfläche 48 m²

Gewerberaum
GeschossErdgeschoss
VerfügbarkeitVerfügbar
Fläche in m248 m²
Raumhöhe2.4m
NutzungsartGewerberaum
Infosvia Personen- und Warenlift zugänglich
360° TourVirtueller Rundgang
Mietzins netto pro m²/JahrCHF 150.-
Nebenkosten pro m²/JahrCHF 30.-

 

14001.01.0006