Direkt zum Inhalt

Angebot Mietflächen im Relais102

Textkörper

Das Relais102 bietet die Ihnen die Chance Ihre Fläche nach Ihren Vorstellungen zu gestalten. 

Die neue Arbeitswelt setzt auf Atmosphäre und auf ein abwechslungsreich gestaltetes Arbeitsumfeld. Die Räumlichkeiten im Relais102 kommen diesem Trend entgegen.

Machen Sie sich bei einem Besichtigungstermin ein eigenes Bild vom Gebäude und den Flächen. Wir beraten Sie gerne.

 

Dokumentation

Abschnitte

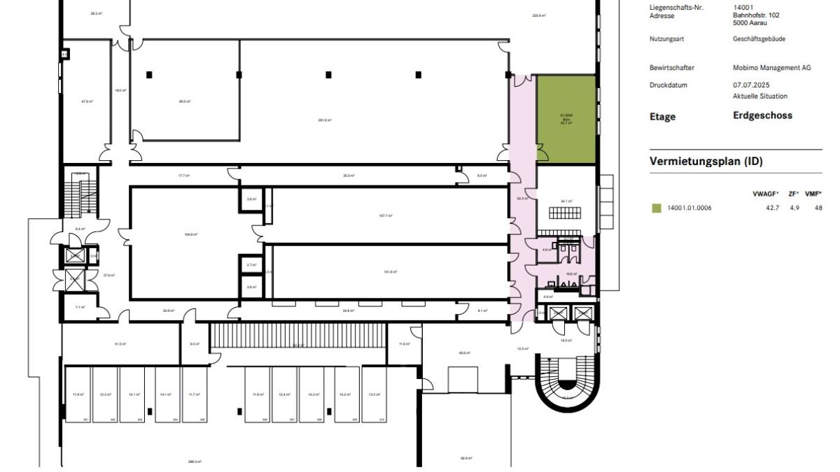
Mietfläche 48 m²

Gewerberaum
GeschossErdgeschoss
VerfügbarkeitVerfügbar
Fläche in m248 m²
Raumhöhe2.4m
NutzungsartGewerberaum
Infosvia Personen- und Warenlift zugänglich
360° TourVirtueller Rundgang
Mietzins netto pro m²/JahrCHF 150.-
Nebenkosten pro m²/JahrCHF 30.-

 

14001.01.0006

Mietfläche 833 m²

Gewerberaum
Geschoss
Fläche in m²833 m²
Raumhöhe2.4m
NutzungsartBüroraum + Lagerraum
Infosvia Personen- und Warenlift zugänglich
360° TourVirtueller Rundgang
Mietzins netto pro m²/p.a.CHF 150
Nebenkosten pro m²/p.a.CHF 30

 

1. Obergeschoss

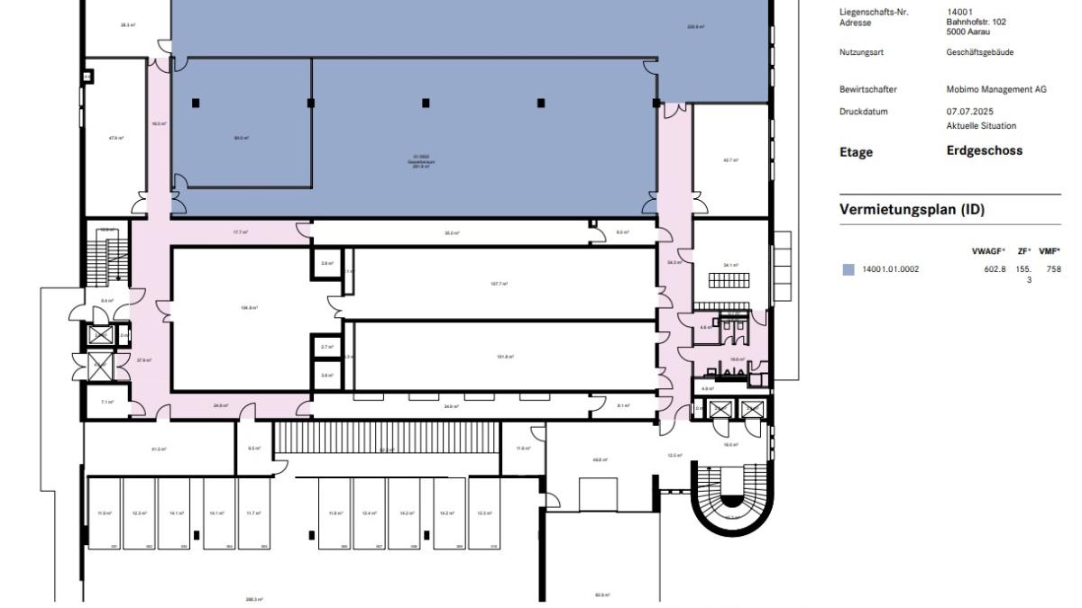
Mietfläche 758 m²

Gewerberaum
GeschossErdgeschoss
VerfügbarkeitVerfügbar
Fläche in m2758 m²
Raumhöhe3.5m
NutzungsartGewerberaum
Infosvia Personen- und Warenlift zugänglich
360° TourVirtueller Rundgang
Mietzins netto pro m²/p.a.CHF 150.-
Nebenkosten pro m²/p.a.CHF 30.- 
14001.01.0002

Mietfläche 38 m²

Gewerberaum
GeschossErdgeschoss
VerfügbarkeitVerfügbar
Fläche in m²38 m²
Raumhöhe3.5m
NutzungsartGewerberaum
Infosvia Personen- und Warenlift zugänglich
360° TourVirtueller Rundgang
Mietzins netto pro m²/p.a.CHF 150.-
Nebenkosten pro m²/p.a.CHF 30.-

 

14001.01.0007

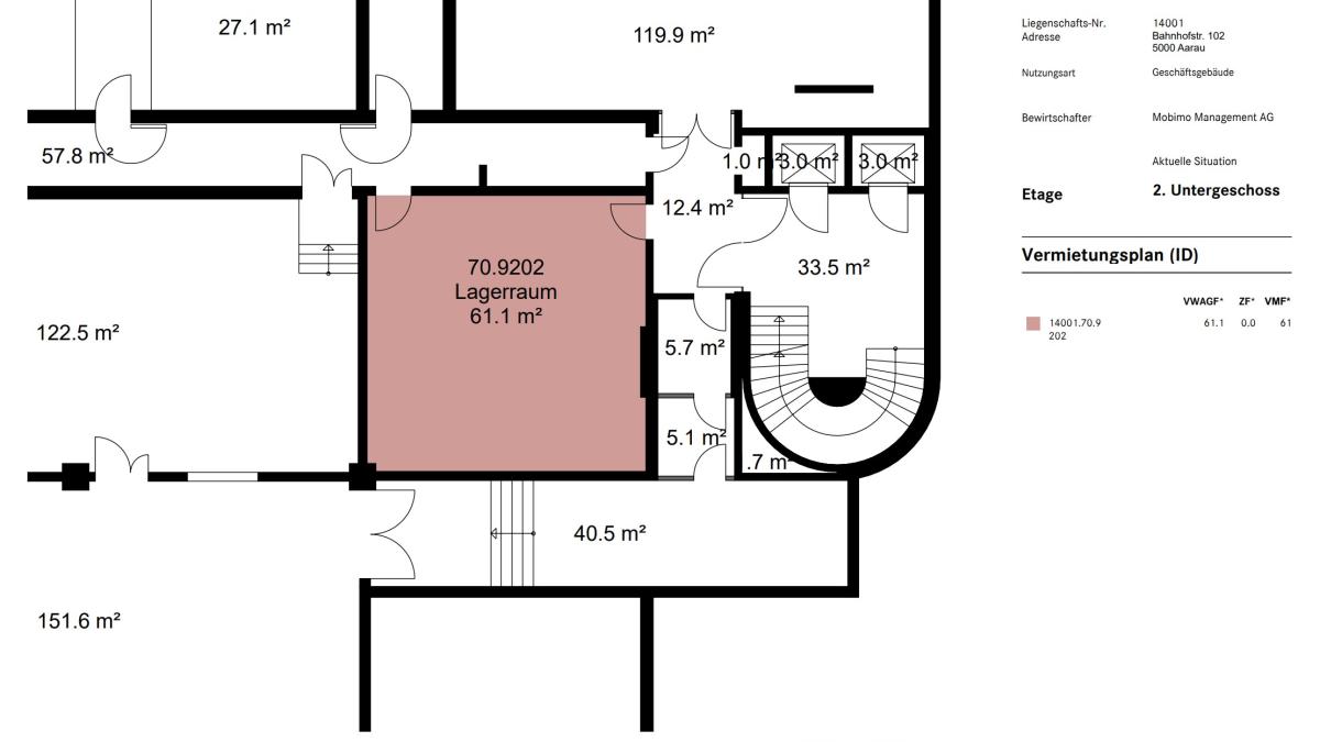
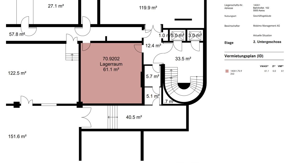
Mietfläche 61 m²

Lagerraum
Geschoss2. Untergeschoss
Fläche in m²61 m²
Raumhöhe2.4m
NutzungsartLagerraum
Infosvia Personen- und Warenlift zugänglich
360° TourVirtueller Rundgang
Mietzins netto pro m²/p.a.CHF 100.- 
Nebenkosten pro m²/p.a.CHF 20.-
14001.70.9 202

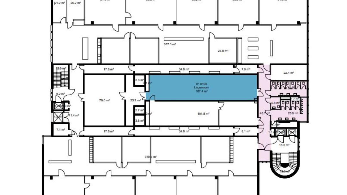
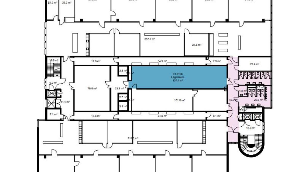
Mietfläche 113 m²

Lagerfläche
Geschoss1
VerfügbarkeitVerfügbar
Fläche in m2113 m²
Raumhöhe3.5m
NutzungsartLagerraum
Infosvia Personen- und Warenlift zugänglich
360° TourVirtueller Rundgang
Mietzins netto pro MonatCHF 941.-
Nebenkosten pro MonatCHF 189.-
Lagerraum 129 m²

Mietfläche 21 m²

Lagerraum
Geschoss2. Untergeschoss
Fläche in m²21 m²
Raumhöhe3.5m
NutzungsartLagerraum
Infosvia Personen- und Warenlift zugänglich
360° TourVirtueller Rundgang
Mietzins netto pro m²/p.a.CHF 150.-
Nebenkosten pro m²/p.a.CHF 30.-
14001.70.9 212