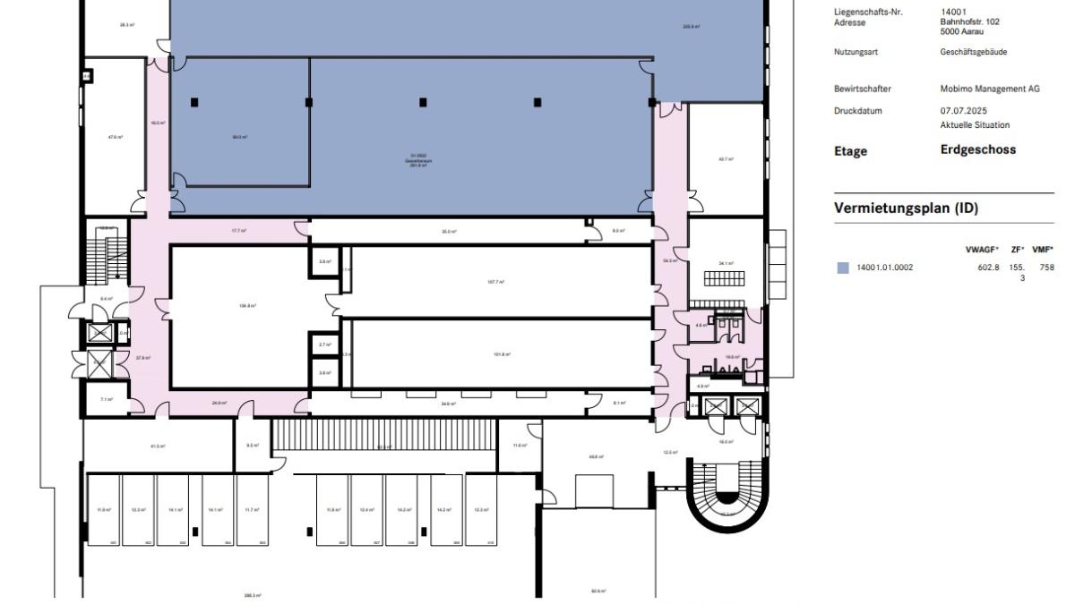
Gewerberaum
| Geschoss | Erdgeschoss |
| Verfügbarkeit | Verfügbar |
| Fläche in m2 | 758 m² |
| Raumhöhe | 3.5m |
| Nutzungsart | Gewerberaum |
| Infos | via Personen- und Warenlift zugänglich |
| 360° Tour | Virtueller Rundgang |
| Mietzins netto pro m²/p.a. | CHF 150.- |
| Nebenkosten pro m²/p.a. | CHF 30.- |